Craftsman Rose
This historic bungalow is ready for its next act.
- Historic renovation. A Craftsman-style bungalow in an historic district
- Adaptive reuse. Once a bungalow reborn as a restaurant and community event space
- Experienced developer. Owned and renovated ~120,000 s.f. In the district
- Coolest street. On St Petersburg’s Central Avenue
- Net Zero. Renovations to focus on energy efficiency
- Walkable. Very walkable, bikeable with good transit options
- Financing. Seller financing in place. Property already purchased
Since 1979, Robert B Roberts Jr, has been acquiring, consolidating and renovating historic buildings in downtown St. Petersburg, contributing to its re-birth. Over time, he owned and renovated four historic buildings on Central Avenue, totaling 116,500 s.f., receiving historic preservation honors along the way.
Now retired, Robert is tackling one more St. Petersburg building, The Craftsman Rose Garden, a 10,000 square foot property comprising three buildings, two of which are historic and were built in 1918. Robert has assembled a team of professionals who were with him from the beginning of his career - architect Lee Harvard, SDF Contracting LLC, Tommy Todd Landscape & Design, Fick Mechanical & Inspection and has the support of the City of St. Petersburg’s Planning Department and Historic Preservationist.
On May 28th, 2025 Robert contracted to purchase the property, which is located at 2955 Central Avenue N., St. Petersburg, Florida 33713. For 23 years the Craftsman Courtyard has been home to The Craftsman House Gallery, which closed in 2025. Owner and curator Jeff Schorr ran The Craftsman House Gallery as an arts & crafts gallery, pottery studio, and an Airbnb unit. The house/gallery was built in 1918, as the model home for the Historic Kenwood neighborhood of St. Petersburg. It is currently a member of the Historic Kenwood Association, The Grand Central District, and the Ware-house Arts District.
Central Avenue is considered the city’s coolest street and runs through the city starting in Downtown St. Petersburg (DTSP) and along Tampa Bay for 80 blocks, eventually becoming Treasure Island Causeway, then 107th Avenue and ending at Gulf Boulevard at the Gulf of Mexico. It acts as St. Pete’s energetic core, and embraces the arts(murals, galleries), diverse dining (with eateries that range from vegan, to Italian, to farm-to-table), lively nightlife (breweries, live music), independent boutiques, and revitalization efforts by the city to boost development and connectivity from downtown to the beaches, making it a major hub for culture, business, and community. The highest-density section of Central Avenue from Beach Drive on the Bay to about 9th Street allows for building up to 46 floors in height. The city's revitalization plan focuses on improving urban design, connectivity, and supporting thriving businesses along this key route.
The house is located in the CCT-2 zoning district of the commercial corridor. This falls inside St. Petersburg’s Corridor Commercial Traditional (CCT) zoning district which is designed to protect and enhance the character of the city's historic commercial streets, encouraging a walkable, mixed-use environment. It balances traditional development patterns with modern needs for rehabilitation and redevelopment such as walkable streetscapes with retail, food and beverage and sidewalk cafes. Walkable design, zero setbacks, mixed use and context-sensitive height are hallmarks of this zoning district. Although our project, is located in the CCT-2 zoning district, which generally allows one- to five-story buildings, since it is a locally designated historic site with historic buildings which must be preserved, it will remain a green oasis and human scale development in what might one day be a canyon of five story buildings.
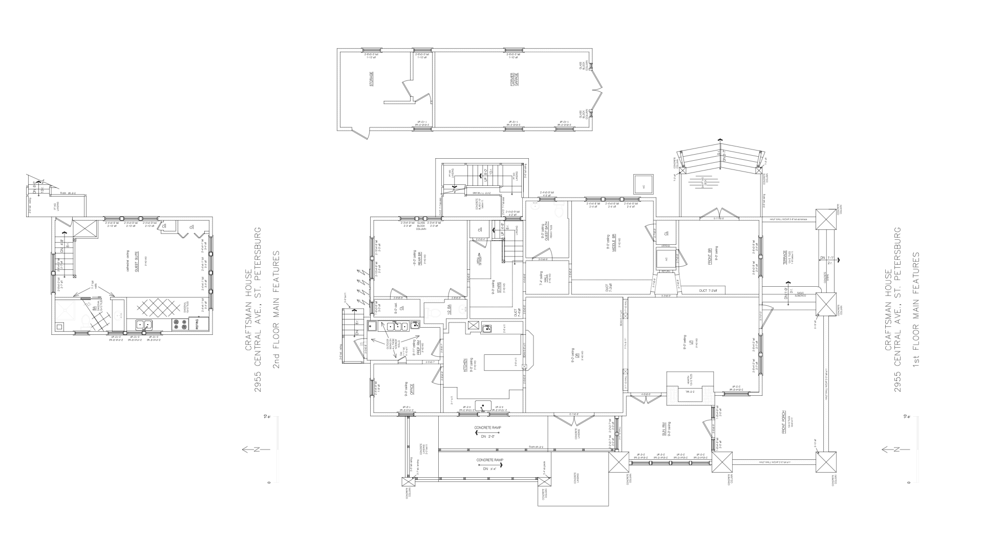
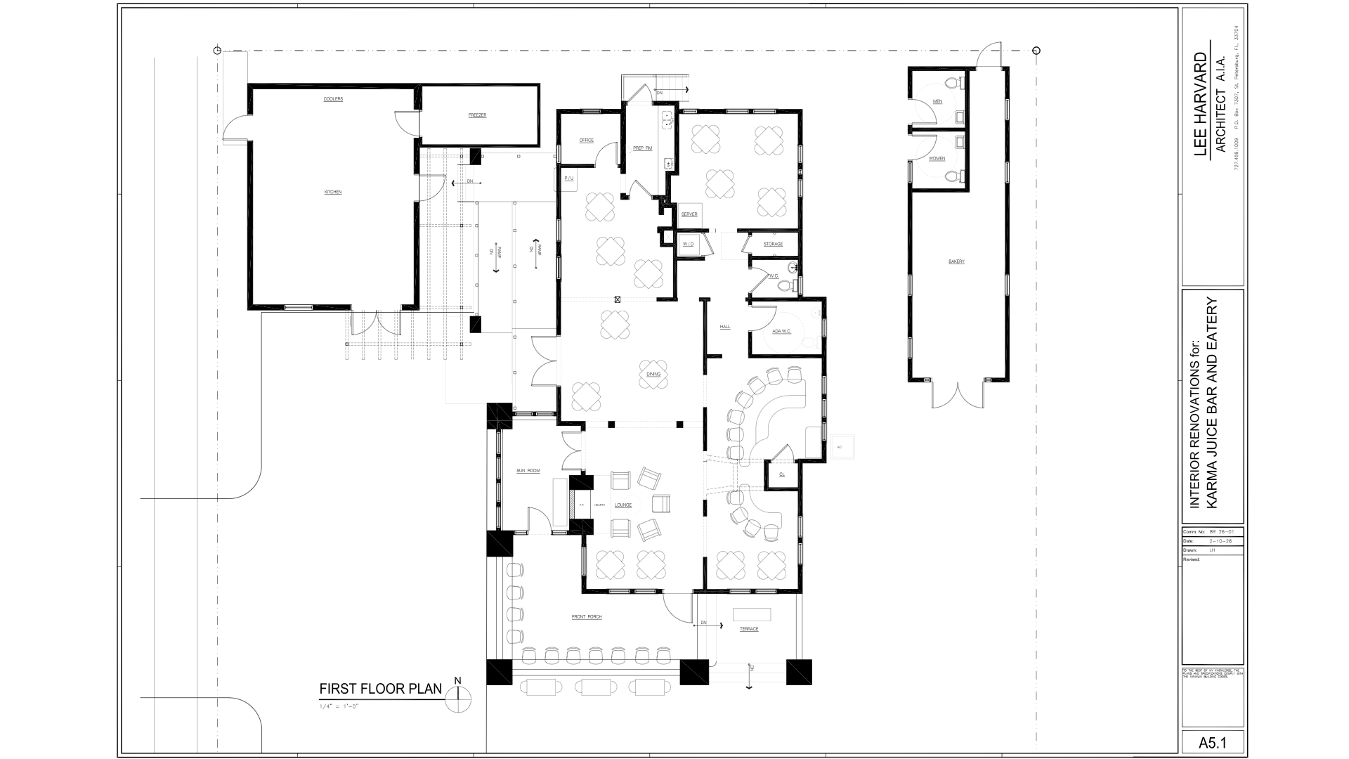
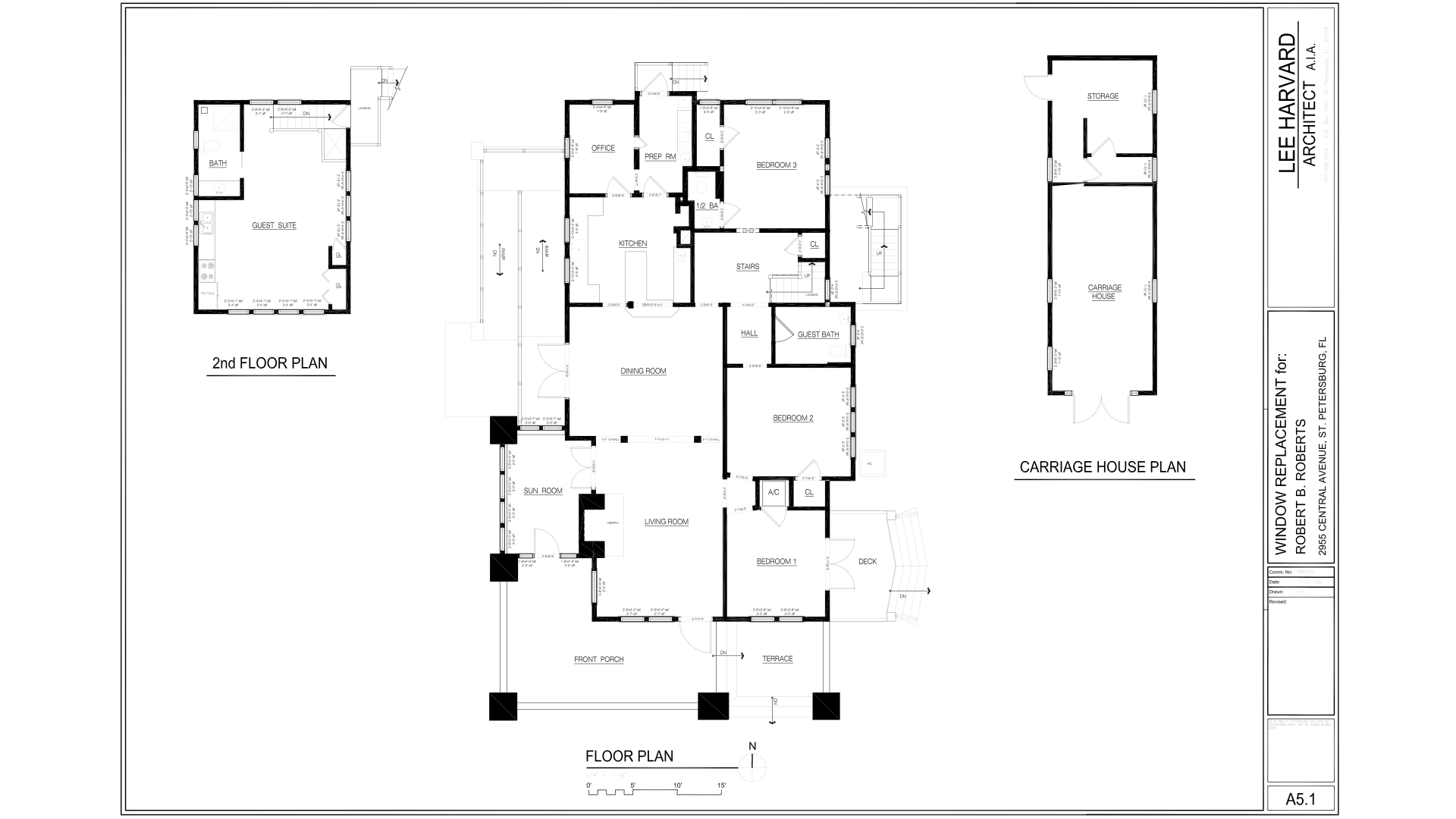
The site is 100 X 100 feet for a total of 10,000 SF. It has four large oaks and a huge palm tree which provides lots of shade. At completion of our renovation plans, the three buildings will include a 588 s.f. Kitchen, servicing over 4,000 SF of courtyard venue space; the 2,027 s.f. main building with its large porch, which will house a kitchen, bar and dining room, and a 456 s.f. Bakery on the east courtyard. The tenant is Karma Juice Bar & Eatery, who have operated in St. Petersburg since 2014.
On January 5th, 2026, Craftsman Rose Garden, LLC (the “Company”) acquired the property. One of the lots to the east was immediately sold which reduced the acquisition cost to $1,102,639.31, including closing costs. The completed project, including both acquisition and renovations, is expected to cost $1,900,000. The Company’s plan is to finance the project through both equity and debt. To date we have acquired a $950,000 first mortgage on the project, at 5% interest for 15 years with a 6-year balloon. The Company’s manager has also invested $200,000, for 20% ownership. We are hoping to raise the final $800,000 in equity through this offering, offering 80% ownership on a pro-rata basis, to investors.
The Craftsman Rose Garden restoration follows the Secretary of the Interior's Standards for Rehabilitation, ensuring that all work preserves the historic character that earned the property its landmark designation.
The building's adaptive reuse honors its historic journey while creating contemporary value. The property has successfully evolved from single-family residence to art studio to its current configuration—demonstrating that preservation and progress can coexist.
The restoration aligns with the Central Neighborhood Plan's focus on business retention and preserving historical resources along Central and First Avenues. By activating the property with Karma Kitchen & Bakery and event spaces, we hope that the project will contribute to the ongoing revitalization of the Grand Central District. Preservation is inherently sustainable—retaining embodied energy, reducing waste, and maintaining neighborhood character for future generations.
Working closely with the City of St. Petersburg's Historic Preservation Commission and the Historic Kenwood Neighborhood Association, every restoration decision balances authenticity with practical modern needs. Our plans follow these preservation principles:
- Retain and preserve original materials and features
- Document historic conditions before intervention
- Use reversible treatments when possible
- Respect original design and construction methods
- Ensure new work is compatible but distinguishable
- Maintain historic spatial relationships
Our work will be complete in four phases - the restoration of the craftsman house, the carriage house revival, kitchen building expansion and the courtyard renovation.
Craftsman House Restoration. 2,027 SF. Complete exterior restoration preserving original materials and features:
- Clapboard siding repair and restoration
- Window restoration with original sash patterns
- Decorative canoe bracket preservation
- Flared gable roof repair
- Period-appropriate exterior paint colors
- New gutters matching historic profiles
- Foundation stabilization
- Porch column and beam restoration
Interior Preservation: Heart pine flooring restoration, plaster wall preservation, wooden beam retention, decorative brass lighting fixtures, built-in cabinetry preservation, historic fireplace restoration.
Carriage House Revival. 456 SF. Transform the historic carriage house while maintaining period design:
- Structural stabilization and foundation work
- Addition of accessible modern bathrooms
- Period-appropriate window and door restoration
- Open rafter system preservation
- Compatible new finishes matching main house
Kitchen Building Expansion. 588 SF. Thoughtful expansion for Karma Kitchen & Bakery:
- 10' x 20' expansion compatible with historic character
- Commercial kitchen infrastructure
- Modern systems within historic context
- Code compliance while preserving aesthetics
- Tenant improvement coordination
The Courtyard Renovation. 4,000 SF. The courtyard represents the heart of the Craftsman Rose Garden project—a gathering space that connects all buildings and creates an intimate outdoor environment for community events and daily enjoyment. Design Elements include:
- Historic rose garden plantings
- Period-appropriate hardscape materials
- Ambient lighting for evening events
- Flexible seating arrangements
- Climate-responsive shade structures
- Sustainable water management (Well)
Anticipated timeline:
- February 2026 - Start demolition
- February 2026 - Order flexible seating arrangements
- March 2026 - Karma Kitchen and Bakery to sign a lease'
- March 2026 - Remove courtyard vegetation
- April 2026 - Repair exterior walls and begin painting
- May 2026 - Building permit approval for required improvements
- May 2026 - Construction start
- June 2026 - Historic rose garden plantings
- June 2026 - Building and courtyard improvements completed
- July 2026 - Opening
Robert B Roberts Jr, the Manager of the Company and the developer, has a long history in commercial real estate and Historic Preservation. In 1977, Robert started as a commercial leasing agent for Amterre Management Inc. of Philadelphia, PA, with responsibility for leasing 13 properties in Florida, including St. Petersburg’s Crossroads Shopping Center and Floriland Mall in Tampa. Robert acquired his real estate license and left Amterre after one year to work with Fred Berger a prominent St. Pete Beach Realtor® and focused on new commercial property acquisition, development and leasing of strip centers and shopping centers. During this time, Roberts earned his Florida Real Estate Brokers License: BKL188769 on July 24, 1979 and his Florida Mortgage Broker License.
Robert, a graduate of St. Petersburg’s Lakewood High School (1969), served in the Navy, Graduate Naval Submarine School – June 5th, 1970, earned his Associates In Arts degree in Accounting, July 13, 1974 from St. Petersburg Junior College now SPC St. Petersburg College and became a Teacher of Transcendental Meditation – Maharishi Mahesh Yogi, Vittel, France March 1974, and taught Transcendental Meditation until 1977. He is still a meditator and active in the meditation community.
In 1979, Robert went out on his own as The R. B. Roberts Company, with Amterre as his first commercial client, opened his office in Crossroads Shopping Center, where he brought in Athenian Gardens, Burdines Department Store, and other national and local tenants. Robert continued his education:
- General Securities Representative Exam Series 7 License 1980
- Series 39 - Direct Participation Programs Principal License 1981
- Certified Commercial Investment Member (CCIM) Courses 1-5 1982
- Graduate Leadership St. Petersburg 1983
As a St. Petersburg native, Robert wanted to do something to help the ailing downtown St. Petersburg (DTSP), which had been going downhill for over 30 years, with no significant real estate investment. The Historic Snell Arcade on Central Avenue was Robert’s first target, then called the Rutland Building, owned by banker Hubert Rutland. Robert contracted to purchase the building from Mr. Rutland for $1,000,000 and brought John Galbraith of Securities Fund Management, Inc the underwriter for Templeton World Fund, into the project as the owner/tenant then oversaw the Historic Restoration and was awarded the Preservation Honor Award from the National Trust for Historic Preservation shared with Architect Charles S. Canerday, AIA, on May 6th, 1983. The Snell Arcade was recognized as the beginning of downtown St.Petersburg's rebirth.
Robert began acquiring and consolidating property throughout downtown and served as the lead developer for Jannus Landing on Central Avenue N, between 3rd Street and 2nd Street (now Jannus Live), receiving the Silver Spike Award. He then purchased the old 40,000 SF Kress Building on 5th and Central, leasing it to the City of St. Petersburg for their municipal headquarters. He purchased and restored The Alexander Hotel - the former hotel into office and retail, and placed the building on the register for the National Trust for Historic Preservation, and assembled, acquired, and sold many other properties in and around DTSP.
This, the latest development, The Craftsman Rose Garden, is a 10,000 SF property with three buildings, two of which are historic and were built in 1918. The project is unique in that Robert has assembled a team of professionals who were with him from the beginning of his career. The Architect Lee Harvard worked with Architect Charles S. Canerday, AIA (deceased) and the Contractor Steve Fernald of SDF Contracting, LLC, both worked on the Jannus Landing (Jannus Live), the Historic Snell Arcade, the Historic Kress Building, and the Historic Alexander Hotel. Tommy Todd of Tommy Todd Landscape and Design, formed in 1982. is one of the largest landscape and hardscape design and installation companies in Pinellas County. Tommy and Robert have been good friends since 7th grade, and they are excited to be working together. The courtyard is arguably the most important part of this development.
The total acquisition cost of the Property was $1,102,689.31, including closing costs. The entire project is expected to cost $1,950,000.
We have a seller-financed, first mortgage of $950,000 in place, with interest of 5% per year for 15 years with a 6-year balloon payment due. Another $1,000,000 is required to complete the project. $200,000 has been invested by Class B Members (the Manager, Robert B Roberts Jr and Joephine B Barber) for a 20% ownership stake. We will be raising $800,000 through this Offering for the remaining 80% ownership interests.
The total renovation and development cost is estimated at $754,194, with a contingency of $93,167, for a total of $847,361. The Company has included a $70,000 development fee. In the event that the development costs exceed $847,361, the Manager will cover all additional costs. Each team member has over 45 years of experience and is confident they will bring the project to completion on budget. Any funds left over after completion will remain in the account for contingencies until the Manager decides the funds are no longer needed, at which point they will be distributed pro-rata to all Investor Members. The tenant for all three buildings is Karma Kitchen & Bakery. They pay a base rent of $45 per square foot and also cover the normal costs of owning and operating the buildings, such as property taxes, insurance, and maintenance. In addition, they pay 7% on any sales over gross annual sales of $1,974,214.29 to the property owner. The property will be managed by the R B Roberts Solutions for 10% of gross revenue. The tenant pays all management fees. The large courtyard of approximately 4,000 s.f., will also be managed and promoted by R B Roberts Solutions. R B Roberts Solutions has experience in promoting events. The courtyard will be a venue for art and music events, weddings, and other celebrations. The Airbnb unit has been operating for over seven years and will net approximately $24,000/year. It will be managed by a third party, Jeffrey Schorr, who has been the owner-operator for the last 7 years.
See this detailed breakdown of development costs and cash flow projections.
We have created a mathematical calculation based on our current assumptions about the Project's completion and operations. We estimate that net cash flow for the Project will grow from approximately $109,469 in the first full year of operations to $116,812 in third year, with a capital event expected in year four. Cash flow and profits from liquidation are expected to net a total of $1,777,667.
Total cashflow and profits anticipated over approximately five (5) years, including the capital event are expected to net around $2,141,189. Our calculation shows that a $5,000 investment might return $10,585 over that period.
Some of our assumptions will prove to be inaccurate, possibly for the reasons described in the Risks of Investing. Therefore, the results of investing illustrated in our calculation are likely to differ in reality, for better or for worse, possibly by a large amount.
Please also review the LLC Agreement, for additional detail on how distributions will be made.
The Company is engaged in a Regulation Crowdfunding (Reg CF) offering (the “Offering”) to raise money for the acquisition and renovation of an historic property and gardens located at 2955 Central Avenue N, St. Petersburg, FL 33713.
We are trying to raise a maximum of $800,000, but we will move forward with the Project and use investor funds if we are able to raise at least $200,000 (the “Target Amount”). If we have not raised at least the Target Amount by 11:59 PM EST on July 31, 2026 (the “Target Date”), we will terminate the Offering and return 100% of their money to anyone who has subscribed.
The minimum you can invest in the Offering is $1,000. Investments above $1,000 may be made in $500 increments (e.g., $1,500 or $2,000, but not $1,136). An investor may cancel his or her commitment up until 11:59 PM EST on July 29, 2026 (i.e., two days before the Target Date). If we have raised at least the Target Amount, we might decide to accept the funds and admit investors to the Company before the Target Date; in that case we will notify you and give you the right to cancel.
After we accept the funds and admit investors to the Company, whether on the Target Date or before, we will continue the Offering until we have raised the maximum amount.
Investments under Reg CF are offered by NSSC Funding Portal, LLC, a licensed funding portal. This offering is registered with the SEC.gov.
A crowdfunding investment involves risk. You should not invest any funds in this offering unless you can afford to lose your entire investment.
In making an investment decision, investors must rely on their own examination of the issuer and the terms of the offering, including the merits and risks involved. These securities have not been recommended or approved by any federal or state securities commission or regulatory authority. Furthermore, these authorities have not passed upon the accuracy or adequacy of this document.
The U.S. Securities and Exchange Commission does not pass upon the merits of any securities offered or the terms of the offering, nor does it pass upon the accuracy or completeness of any offering document or literature.
These securities are offered under an exemption from registration; however, the U.S. Securities and Exchange Commission has not made an independent determination that these securities are exempt from registration.
There are numerous risks to consider when making an investment such as this one and financial projections are just that - projections. Returns are not guaranteed. Conditions that may affect your investment include unforeseen construction costs, changes in market conditions, and potential disasters that are not covered by insurance. Please review our Risks of Investing document for a more expansive list of potential risks associated with an investment in this Company.
Unless otherwise noted, the images on the offering page are used to convey the personality of the neighborhood in which the project is planned. Properties shown in these images are not included in the offering and Investors will not receive an interest in any of them.
